|
|
 |
|
|
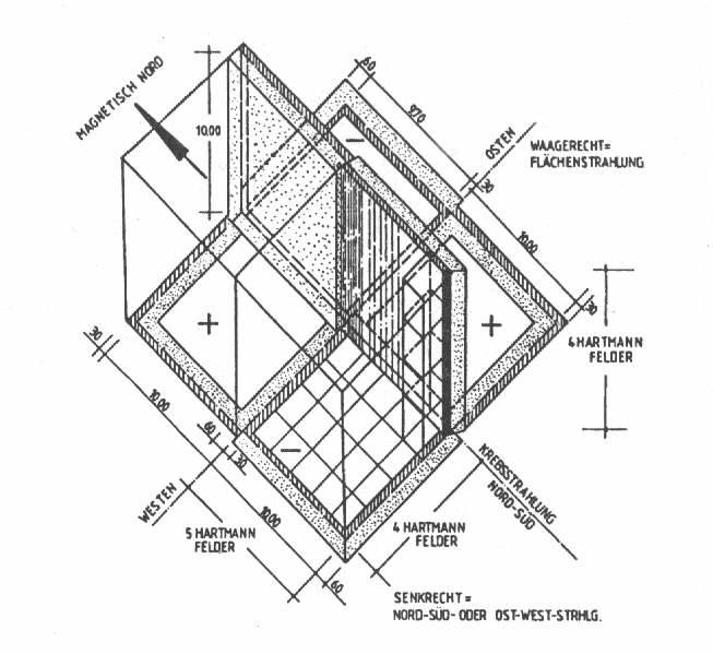
Das Benker-System
ist das große und wirksamste Gitter des gesamten Systems. Es ist ein Kubensytem mit den Maßen von ca 10 x 10 x 10 Meter. In diesem Gitternetz ist das Hartmanngitter und das Curry-Netz integriert.
Die Balkenbreite beträgt ca. 60 - 100 cm. Es wechseln sich positiv geladene (Elektroraum) und negativ geladene (Magnetraum)
Kuben ab, deren Einflüße zwar unterschiedlich sind, aber auf Grund der gringen Potentialunterschiede geopathogen kaum wirksam sind. |
|
 |
|
|
|
 |
|
|
|
 |
 |
|
Zu den Gitternetzen wäre folgendes zu sagen:
Über Ursache, Entstehung und Zweck des Gitternetzes wissen wir so gut wie nichts. Höchstwahrscheinlich besteht ein enger Zusammenhang mit der statischen Elektrizität innerhalb unserer Atmosphäre. Meinen Messungen
nach ist das gesamte Gittersystem die elektrische Grundlage des “Erdmagnetfeldes”. Es gibt kein Magnetfeld ohne eine “elektrische Quelle”! Auch in einem Permanentmagneten spielen sich elektrische Vorgänge ab, aber auch
hier kann die Elektrizität auch nicht meßbar nach außen in Erscheinung treten und irgendwie nutzbar angezapft werden, im Gegensatz zum “magnetischen Feld” !
Ein gesundheitsstörende Einfluß bei Gitternetzen ist in
erster Linie dort vorhanden, wo die Streifen und Kreuzungen des Benker- und Hartmann-Gitters zusammentreffen (Siehe rechte Zeichnung). Die einzelnen Streifen und Kreuzungspunkte des Hartmann-Gitters zeigen nur Wirksamkeit, wenn sie mit Wasseradern, Elektrizität oder anderen Störungen zusammenfallen!. Viele
Rutengänger ignorieren die Gitternetze ganz, andere machen eine Wissenschaft daraus, aus Wichtigmacherei oder einfach nur um Geschäfte zu machen, oder das Ganze wissenschaftlich darstellen zu wollen! (Neuerdings
sollen von findigen Geopathologen auch noch Gitternetze mit 170 Meter, 250 Meter und 400 Meter entdeckt! worden sein -
Über die Gitternetze wird von manchen Rutengängern und Geopathologen ein immer größerer Unsinn verbreitet !), ich konnte bisher noch kein einziges finden oder feststellen! Bevor sie solchen Unsinn verbreiten, sollten sie sich zuerst mit der genaueren Erforschung des “bekannten
Gittersystems” beschäftigen. |
|